Alu-Slide

System von großen Schiebetüren mit schmalen Profilen, die vollständig im Boden, in den Wänden und in der Decke verborgen sind.

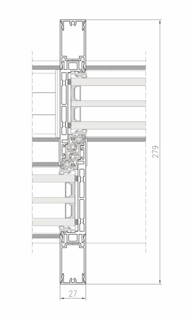
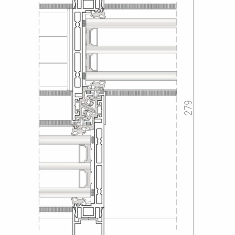
Maximale Höhe von 4 m und maximales Gewicht des Schiebeflügels von bis zu 500 kg. Die Ästhetik der Konstruktion wird unter anderem durch die sichtbare Profilbreite beim Absenken der Flügel ergänzt, die nur 27 mm beträgt. Durch das innovative Design kann man Doppelglasscheiben nebeneinander installieren, ohne dass Aluminiumteile von aussen sichtbar sind. Mit dem statischen Profil kann man Vollverglasungen ausführen, und mit dem Ganzglaseckenelement kann man sie im beliebigen Winkel installieren.

Galerie

Nehmen Sie Kontakt mit uns auf

Anschrift

Wo Sie uns finden

Copyright © 2025 Alle Rechte vorbehalten. | Webdesign by Vishiba.com